RESIDENCIAL ZACATÍN TERRAZAS

44 viviendas plurifamiliares VPO con garaje y trastero en régimen de cooperativa

Alcalá de Guadaíra
(Sevilla)

viviendas plurifamiliares
0
Dormitorios por vivienda
2/ 0
Garaje privado incluido
0

Situación

El Residencial Zacatín Terrazas se encuentra en Alcalá de Guadaíra (Sevilla), un municipio de la comarca de Los Alcores con más de 76.900 habitantes (INE 2024), situado a solo 17 km de la capital.

La promoción se ubica en la zona Zacatín, con fácil acceso desde cualquier punto de la ciudad, dentro de un entorno urbano consolidado y bien comunicado.

Alcalá de Guadaíra destaca por su rico patrimonio histórico y natural, con lugares emblemáticos como el Castillo de Alcalá, el Parque y Pinar de Oromana, las riberas del río Guadaíra —declaradas Monumento Natural— y la zona arqueológica de Gandul.

Un entorno ideal que combina historia, naturaleza y servicios urbanos.

MÁS DETALLES SOBRE
NUESTRO EDIFICIO

Ubicación

Zona Zacatín · Alcalá de Guadaíra (Sevilla)

El entorno

Entorno urbano consolidado con todos los servicios, zonas verdes y equipamientos educativos, deportivos y comerciales.

Conexiones

A 17 km de Sevilla capital · Acceso directo a la A-92 y SE-3206 · Próximo a la SE-40 y estación de tren de Cercanías

Transporte público

Conexión con líneas metropolitanas hacia Sevilla y municipios del Aljarafe.

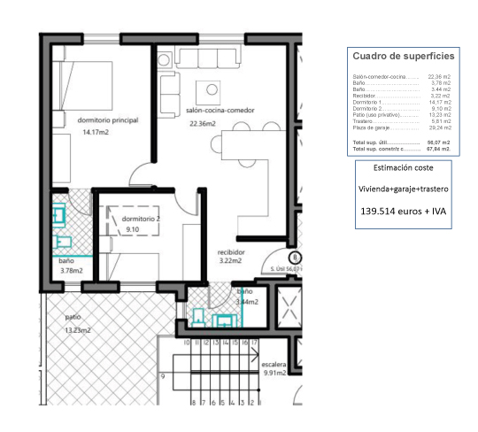
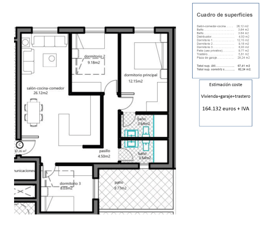
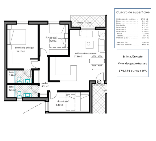
Planos

Fase 1

44 Viviendas Plurifamiliares

Acuario Gescoop

Empresa de gestión de proyectos inmobiliarios, con una trayectoria de más de 20 años y habiendo realizado más de 2.000 viviendas en la comunidad de Andalucía.

El equipo de profesionales que integra la empresa, abarca todas las áreas de gestión, desde las jurídicas, contables, fiscales y técnica.

Una cooperativa de viviendas es una agrupación de personas que comparten la necesidad de acceder a una vivienda y se unen para autopromoverla en las mejores condiciones de calidad y precio. Su característica principal es la ausencia de ánimo de lucro mercantil, ofreciendo viviendas a estricto precio de coste.

El cooperativista es socio de la cooperativa y, como tal, copropietario y adjudicatario de la vivienda. Participa en las principales decisiones a través de órganos sociales como la Asamblea General, el Consejo Rector y el Interventor.

  • Económicas: ahorro gracias a la autopromoción a precio de coste.

  • Participación: el socio interviene en cada etapa de la promoción mediante las Asambleas.

El proyecto está gestionado por Acuario Gescoop, empresa con más de 20 años de experiencia y más de 2.000 viviendas desarrolladas en Andalucía. Su equipo de profesionales abarca las áreas jurídicas, fiscales, contables y técnicas, garantizando seguridad y calidad en todo el proceso.

Acuario Gescoop selecciona siempre los mejores emplazamientos, diseña cada proyecto con detalle y exige a las constructoras la máxima calidad en la ejecución de las obras, ofreciendo viviendas que cumplen con los más altos estándares.